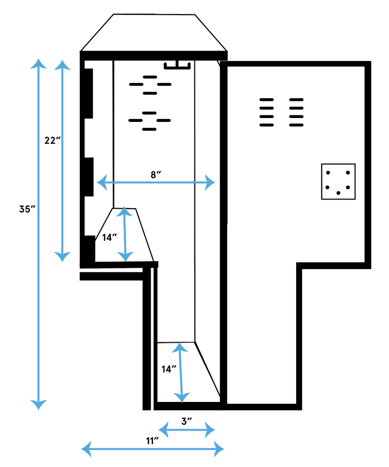
Rentable Lockers
The dimensions of lockers available to rent long term.

Day Use Lockers
The dimensions of lockers available for day use.

Women's Locker Room Guide
Find where locker numbers are located in the women's locker room for both students and employees.

Men's Locker Room Guide
Find where locker numbers are located in the men's locker room for both students and employees.
